Topasgatan 3

Kontor, 396m² , Västra Frölunda
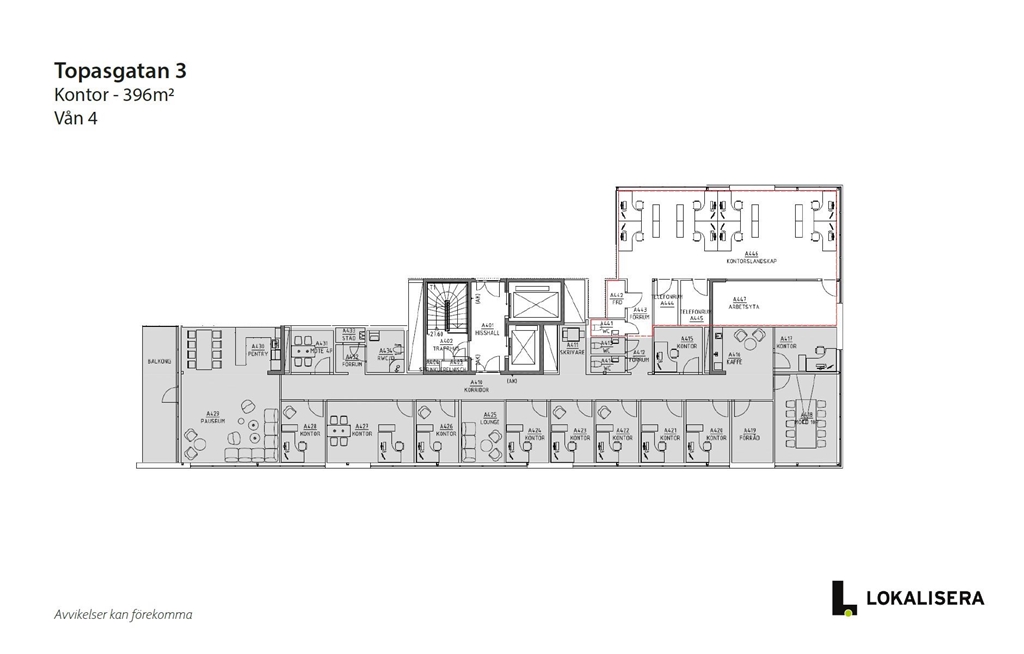
Välkommen till en nybyggd och representativ kontorslokal om 396 kvm, med en genomtänkt rumsbaserad planlösning i kombination med öppna arbetsytor och flera mötes- och konferensrum. Lokalen passar särskilt väl för tjänste- och kunskapsföretag som behöver arbetsro, integritet och professionella kundmöten som exempelvis konsulter, rådgivare, teknikbolag, arkitekter eller advokatverksamheter. Lokalen erbjuder moderna ytskikt, hög ljudisolering och en trivsam känsla med utsikt mot Frölunda Torg och området omkring. Den ljusa lounge- och köksdelen blir en naturlig samlingspunkt och har direkt access till en egen balkong. Intill det större konferensrummet finns en praktisk paus- och kaffestation. Läget är mycket tillgängligt: cirka 5 minuters promenad till spårvagn och bussar vid Frölunda Torg, samt direkt anslutning till Söderleden, vilket även ger ett starkt skyltläge mot förbipasserande trafik. Fastigheten erbjuder dessutom gym med omklädningsrum, modern konferensvåning, goda parkeringsmöjligheter samt möjlighet att hyra garageplats med elbilsladdning. Kontakta oss på Lokalisera för mer information och för att boka en visning.

Fakta

Lokaltyp

Kontor

Storlek

396m²

Omgivning

Västra Frölunda, som ligger sydväst om Göteborgs centrum, är en viktig knutpunkt för service, handel och kommunikationer. Området har ett brett utbud av såväl shopping som natur och inom räckhåll finns exempelvis havs- och naturområden. Västra Frölunda är även hem för Göteborgs näst största köpcentrum, Frölunda Torg.

Kommunikationer

Västra Frölunda har ett strategiskt bra läge med bra kollektivtrafik och trafikleder. Härifrån går det snabbt och lätt att ta sig in till Göteborgs centrum samtidigt som det ligger utanför zonen för trängselskatt.

Service

Närhet till Frölunda Torg med 200 butiker, salutorg, restauranger och offentlig service.

Intresseanmälan

Hittar du inte vad du söker?

Vi får löpande in nya lokalobjekt. Kontakta oss om vill du veta mer eller bli inlagd i vårt spekulantregister för att kontinuerligt få information om nya lokaler som matchar ert behov.

Åk till toppen