Föreningsgatan 4

Kontor, 178m² , Centrum
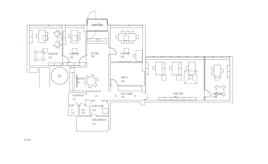
Nu finns möjlighet att hyra ett charmigt och något annorlunda kontor om 178 kvm, beläget i markplan i BRF-fastighet, mitt emellan Vasastan och Linné. Trots centralt läge är miljön mycket lugn. Fastigheten ligger något upphöjt vilket ger bra ljusinsläpp och viss överblick, trots markplansläge. Här sitter ni med: - Några minuters promenad till Handelshögskolan och Vasagatan - Spårvagn ett par minuter bort (Hållplats Handelshögskolan) - Parkeringsmöjlighet i fastighetens garage - Stort utbud av trevliga restauranger och caféer i närområdet - Tillgång till föreningens lugna gård/trädgård, perfekt för lunch eller kaffe i solen - Mysigt och lugnt område mitt i stan Ett utmärkt alternativ för konsultverksamhet, kreativ byrå, mindre advokatverksamhet eller annan verksamhet som söker ett centralt men avskilt läge, utan cityhyrans högsta nivåer. Vad väntar ni på? Kontakta oss för mer information och boka visning, upplev känslan på plats.

Fakta

Lokaltyp

Kontor

Storlek

178m²

Omgivning

Vasastaden, som sedan 1600-talet ligger i centrala Göteborg, skapades med en dröm om ett göteborgskt Paris eller Wien. Området präglas än idag av breda gator, vackra bebyggelser och en internationell känsla. Området attraherar både företag och boende tack vare sitt centrala läge, historiska karaktär och lugnare tempo jämfört med de mest intensiva delarna av city. Här samsas kontor, bostäder, caféer och små butiker i en trivsam och kreativ miljö.

Kommunikationer

Goda kommunikationer med flera buss- och spårvagnslinjer som passerar Vasaplatsen, Valand och Handelshögskolan, vilket ger snabb och smidig tillgång till resten av staden. Centralstationen nås enkelt med kollektivtrafik eller cirka 15 minuters promenad.

Service

Området erbjuder ett brett utbud av service. Runt Vasaplatsen och Viktoriagatan finns många populära caféer, restauranger, delikatessbutiker och närbutiker. Nära till både Avenyns puls och Haga med sina småskaliga shoppingupplevelser och personliga atmosfär.

Intresseanmälan

Hittar du inte vad du söker?

Vi får löpande in nya lokalobjekt. Kontakta oss om vill du veta mer eller bli inlagd i vårt spekulantregister för att kontinuerligt få information om nya lokaler som matchar ert behov.

Åk till toppen