Argongatan 6

Kontor/Lager, 1300m² , Åbro
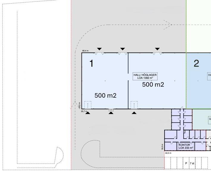
Nu finns en sällsynt möjlighet att hyra en asfalterad och inhägnad gårdsyta om ca 3.320 kvm, i kombination med lager- och kontorsytor, i ett mycket strategiskt läge i Åbro Företagsområde, vid trafikplatsen intill AstraZeneca, med snabb access till E6 och Söderleden. Detta är ett objekt för verksamheter där utomhusytan är en central del av behovet, exempelvis för uppställning, arbetsfordon, maskiner, material eller daglig hantering. Gård ca 3.320 kvm (förhyres tillsammans med lokalerna, finns möjlighet att utöka gårdsytan något) Lager ca 500 1.100 kvm (5 6 m takhöjd, 3 markportar) Kontor ca 100 230 kvm i anslutning Bra mottagningsyta och möjlighet till skyltning mot Söderleden Passar särskilt bra för entreprenad-, service-, installations- eller grossistverksamhet med behov av stor gård i kombination med lager och kontor. Fastigheten ligger längs med Söderleden med ett utmärkt kommunikationsläge både gällande transport och kollektivt. Detta gör lokalen lämplig för företag som värderar tillgänglighet för anställda och besökare. Kontakta oss gärna för mer information eller visning. Denna lokal marknadsförs av Lokalisera AB på uppdrag av fastighetsägaren.

Fakta

Lokaltyp

Kontor/Lager

Storlek

1300m²

Omgivning

Åbro Företagsområde som ligger i Mölndal, har ett gott företagsklimat som passar såväl det lilla som stora företaget. Området har god tillväxt och i nuläget byggs flertalet fastigheter inom handel och logistik. Tack vare det goda läget längsmed Söderleden och E6/E20 finns även möjlighet till god tillgänglighet och bra exponering.

Kommunikationer

Med bil kommer du snabbt och lätt ut på både söderleden och E6:an. Restid med bil till Mölndals centrum ca 5 min, Sisjön ca 7 min, Frölunda Torg ca 10 min, Göteborg city ca 15-20 min, Landvetter flygplats ca 20 min. Med kollektivt reser du enkelt och snabbt till/från Mölndals centrum för vidare anknytningar med tåg/buss/spårvagn. Hållplatserna Neongatan och AstraZeneca ligger på kort promenadavstånd från fastigheten och har frekventa avgångar.

Service

Det finns ett bra utbud av lunchrestauranger i området. Närhet till både Mölndals centrum/Mölndals Galleria och Sisjöns handelsområde där all tänkbar service finns tillgänglig.

Intresseanmälan

Hittar du inte vad du söker?

Vi får löpande in nya lokalobjekt. Kontakta oss om vill du veta mer eller bli inlagd i vårt spekulantregister för att kontinuerligt få information om nya lokaler som matchar ert behov.

Åk till toppen