
Hittar du inte vad du söker?
Vi får löpande in nya lokalobjekt. Kontakta oss om vill du veta mer eller bli inlagd i vårt spekulantregister för att kontinuerligt få information om nya lokaler som matchar ert behov.
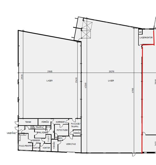
Kontor/Lager
2003m²
Hiss finns
Vi får löpande in nya lokalobjekt. Kontakta oss om vill du veta mer eller bli inlagd i vårt spekulantregister för att kontinuerligt få information om nya lokaler som matchar ert behov.